Maison L.B

Programme : Réhabilitation et extension d’une dépendance de maison de maître

MOA : Privée

Surface : 130 m²

Montant de travaux : n.i

Localisation : Roubaix (59)

Avancement : Livré

La maison de maître est une typologie de bâti traditionnelle du Nord, témoin du riche passé industriel de la région.

Le projet L.B est issue de la demande d’un jeune couple de réhabiliter l’ancienne maison du gardien, située en fond de parcelle de la maison principale, pour y construire une maison familiale. Le programme prévoit la réhabilitation totale de la construction existante, ainsi que la création d’une extension, permettant de doubler la surface initiale.

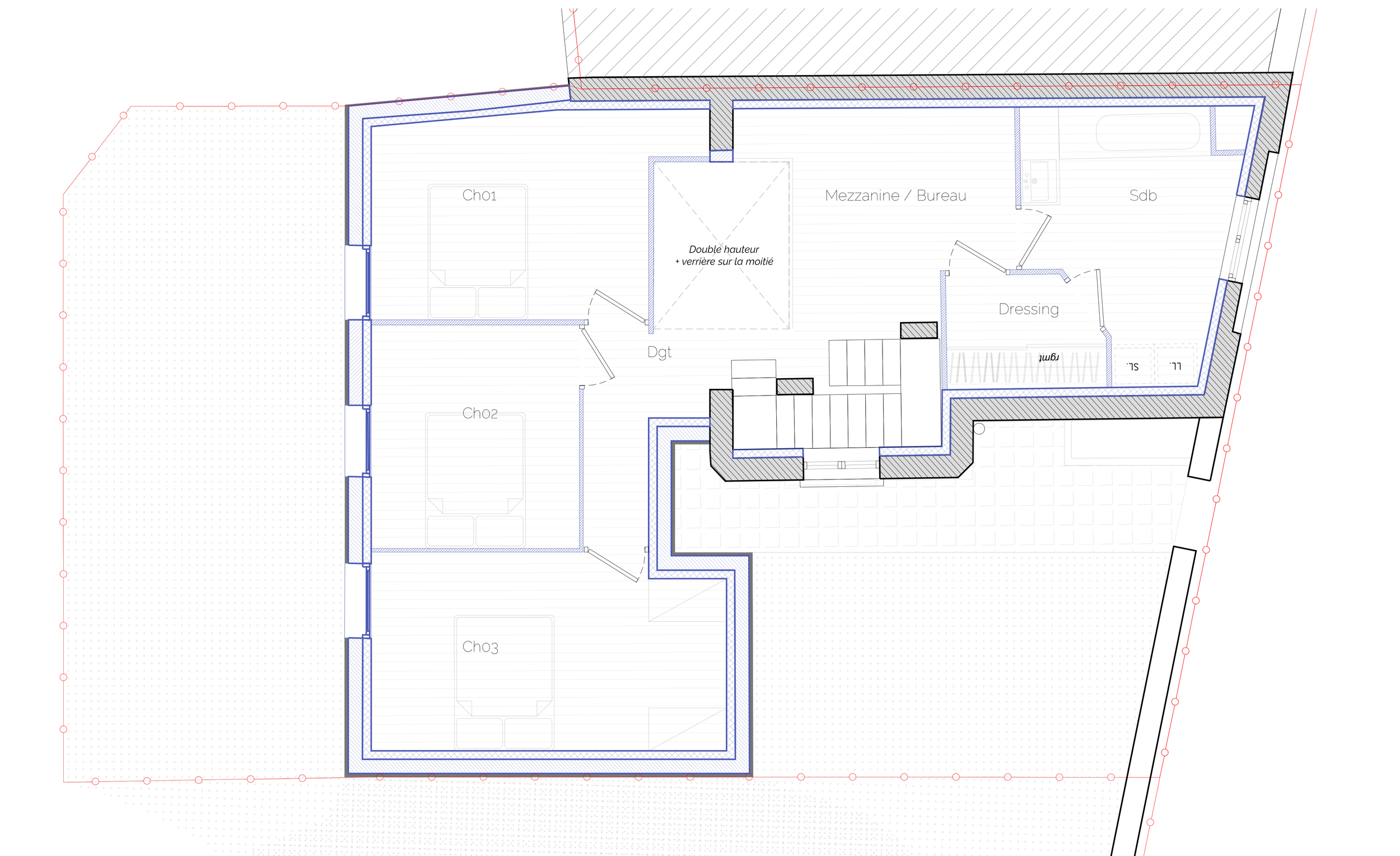
Situé en secteur ABF, le projet nécessite un respect de la construction existante, et une accroche de l’extension respectueuse de la perception de l’existant depuis la rue. L’extension est articulée autour d’un patio marquant l’entrée de la maison, permettant ainsi au volume existant de conserver ses caractéristiques. 

Pour optimiser les performances énergétique de l’extension, le volume construit est compact, et les ouvertures est/ouest ont été privilégiées. Ainsi, le séjours est traversant et bénéficie de l’ensoleillement tout au long de la journée. Les surfaces habitables du rez-de-chaussée sont généreuses (60 m² au total), et une dalle vitrée sur la mezzanine vient accentuer la sensation de hauteur, à la rencontre des volumes neuf et existant. A l’étage, la mezzanine distribue 3 grandes chambres et devient un espace de vie supplémentaire.

L’extension est traitée en bardage bois brulé, pour prévenir de son vieillissement, et donner à l’ensemble de la construction un aspect contemporain. Le brûlage du bois permet de révéler le veinage naturel du bardage, en faisant apparaître à la surface une matérialité faite de craquelures aux lignes sinueuses, créant un relief clair-obscur sur le volume neuf.

Précédent
Précédent

Maison A.